Woning van
Bijzondere kopwoning Model E5
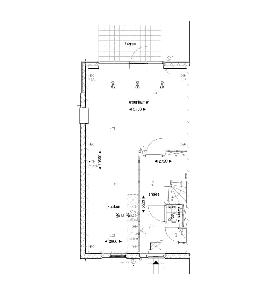
Moderne hoekwoning gelegen aan de linkerzijde van het blok. In deze woning bevindt de keuken zich aan de voorzijde. Desgewenst is de woonkamer met de optionele uitbouw nog ruimer te maken. Op de eerste verdieping zijn drie slaapkamers waarvan 1 met een Frans balkon en karakteristieke louvre luiken.
Kenmerken woning
Deze woning heeft zoveel moois te bieden
"Nieuwbouw is echt fijn:
je kunt alles precies zo kiezen als je wilt."
Nieuwe bewoners Sander en Marlies over Boskoop
Ze kennen elkaar inmiddels in elk geval van naam en van gezicht. Ze komen uit Boskoop of juist uit de grote stad. Ze blijken vrienden van vroeger of hebben elkaar laatst op de buurtborrel pas voor het eerst ontmoet. Het zijn de bewoners van de Brederodepeer, de eerste opgeleverde straat van Waterrijk. En ja, dat schept toch een band. Wie zijn deze eerste bewoners, hoe komen ze hier terecht en vooral: hoe is het om hier te wonen?
Interesse?
Plaats jezelf op de reservelijst.
Binnenkort zal bekend worden of er nog woningen beschikbaar zijn. Dus ben je geïnteresseerd in een van de woningen? Plaats jezelf dan op de reservelijst. De makelaar zal dan zo snel mogelijk contact opnemen.






