Woning van
circa 148 m2

met uitbouw en
dakkapel zijkant

Bijzondere kopwoning Model D

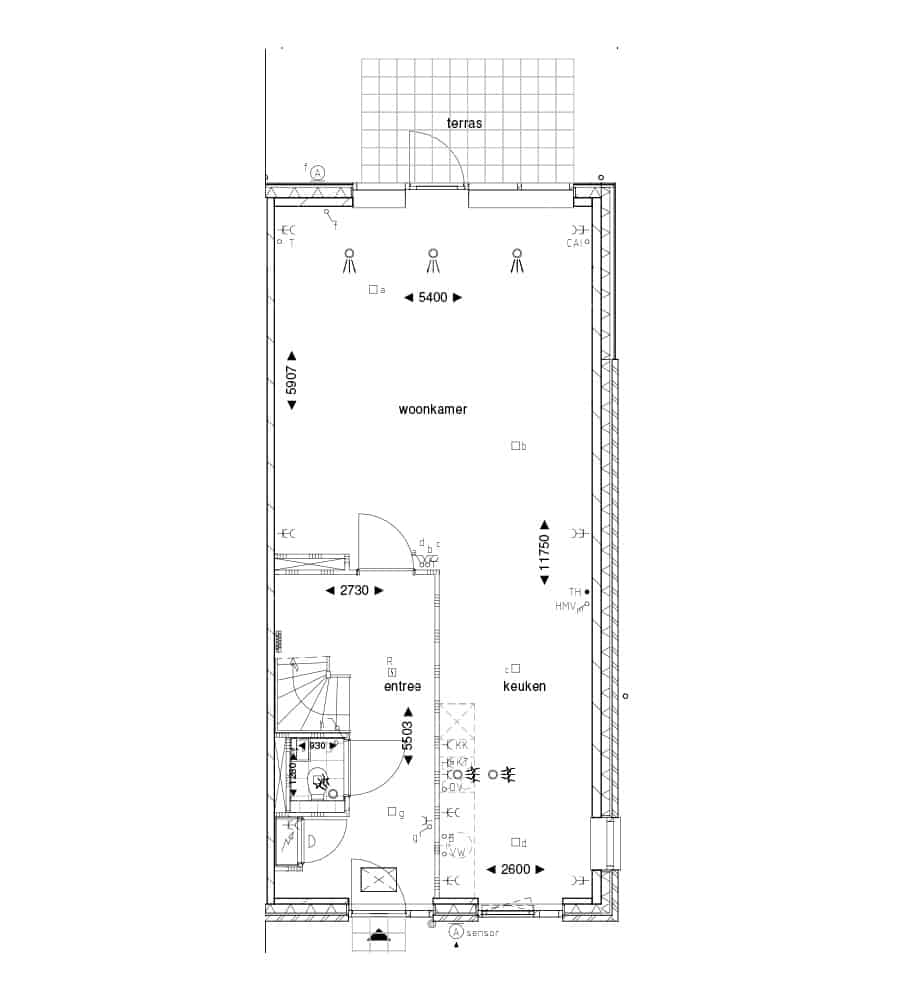
In deze moderne hoekwoning met dwarskap bevindt de keuken zich aan de voorzijde van de woning. De woonkamer is door de standaard toegepaste uitbouw nog ruimer gemaakt. Op de eerste verdieping zijn drie slaapkamers waarvan 1 met een Frans balkon en karakteristieke louvre luiken. De zijkant van de karakteristieke dwarskap is standaard voorzien van een dakkapel.

Ik heb interesse

Kenmerken woning

Deze woning heeft zoveel moois te bieden

Moderne hoekwoning met standaard een gebruiksoppervlakte van 148 m2
Standaard voorzien van 4 slaapkamers
Uitgevoerd met een Frans balkon en louvre luiken
Grote onbenoemde ruimte op de zolderverdieping
Diverse opties en uitbreidingsmogelijkheden
Ruime tuin op het westen
Kaveloppervlakte van ruim 202 m2
Koopsom € 412.500,- v.o.n.

Verkoopbrochure

Technische omschrijving

Plattegronden

Prijslijst

"Nieuwbouw is echt fijn:
je kunt alles precies zo kiezen als je wilt."

Nieuwe bewoners Sander en Marlies over Boskoop

Ze kennen elkaar inmiddels in elk geval van naam en van gezicht. Ze komen uit Boskoop of juist uit de grote stad. Ze blijken vrienden van vroeger of hebben elkaar laatst op de buurtborrel pas voor het eerst ontmoet. Het zijn de bewoners van de Brederodepeer, de eerste opgeleverde straat van Waterrijk. En ja, dat schept toch een band. Wie zijn deze eerste bewoners, hoe komen ze hier terecht en vooral: hoe is het om hier te wonen?

Lees over Sander en Marlies

Interesse?
Plaats jezelf op de reservelijst.

Binnenkort zal bekend worden of er nog woningen beschikbaar zijn. Dus ben je geïnteresseerd in een van de woningen? Plaats jezelf dan op de reservelijst. De makelaar zal dan zo snel mogelijk contact opnemen.

Bekijk het aanbod