Woning van
Moderne twee-onder-een-kapwoning Model S
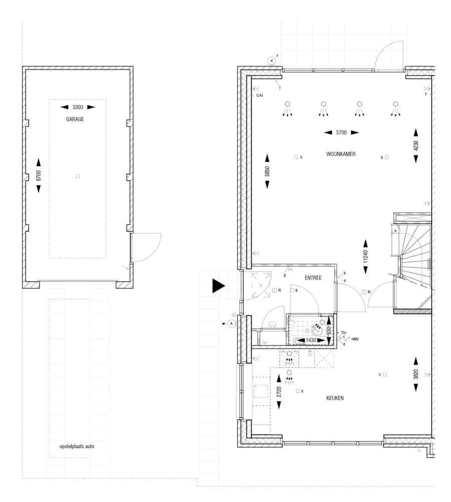
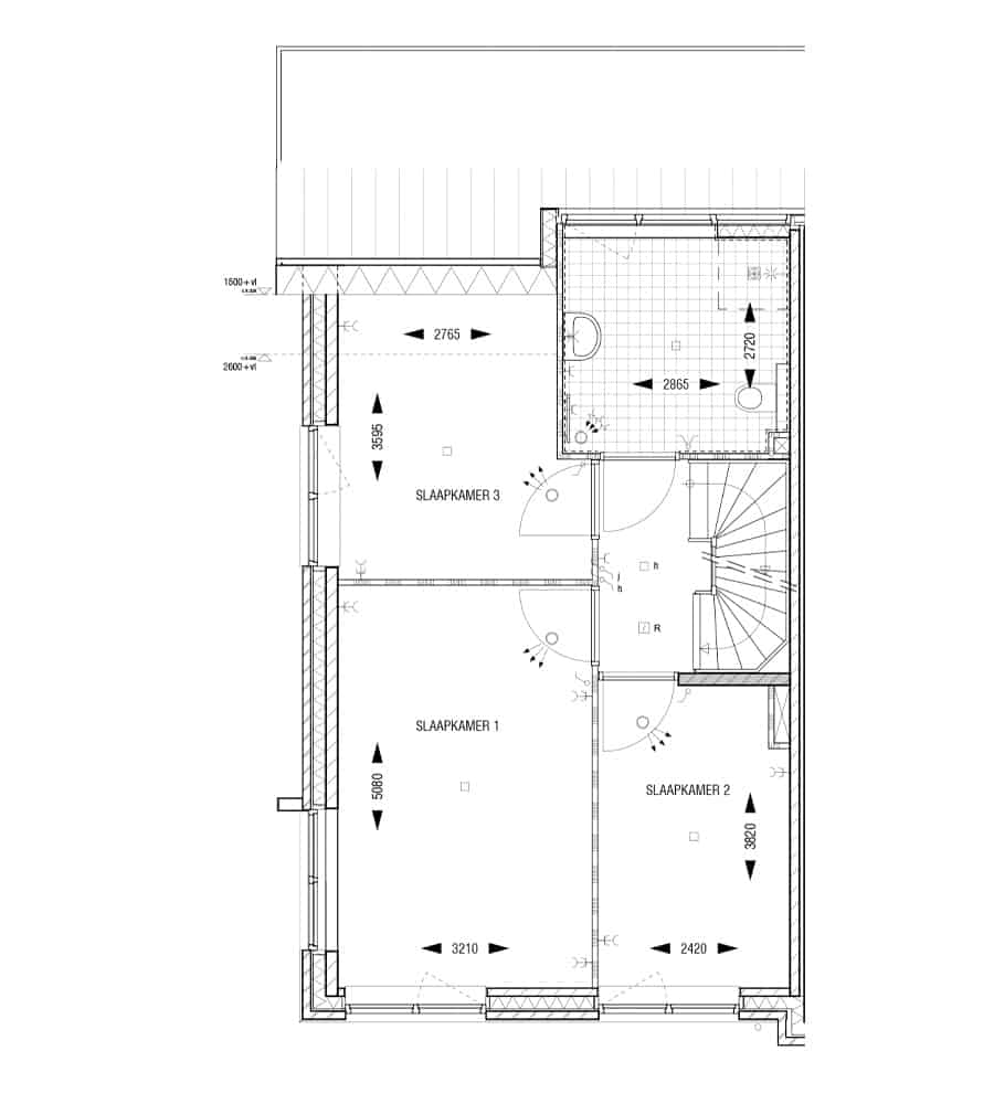
Deze twee-onder-een-kapwoning is uitgevoerd met een karakteristieke dwarskap. Op de eerste verdieping bevinden zich 3 slaapkamers en een ruime badkamer. Standaard wordt deze woning uitgevoerd met een losstaande garage met verhoogd dak. De zonnige, op het zuiden gelegen, tuin heeft een kavelbrede vlonder aan het water.
Direct inschrijven
Kenmerken woning
Deze woning heeft zoveel moois te bieden
Moderne tweekapper met standaard een gebruiksoppervlakte van 142 m2
Standaard voorzien van 3 slaapkamers
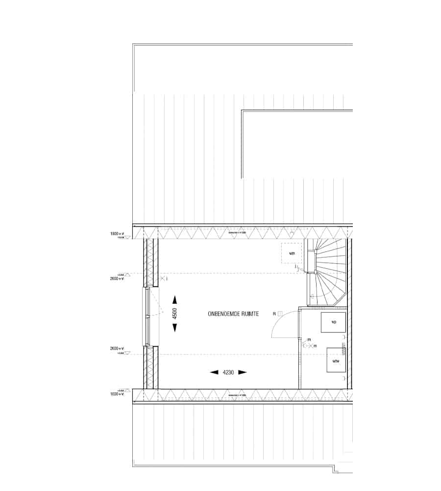
Grote onbenoemde ruimte op de zolderverdieping
Diverse opties en uitbreidingsmogelijkheden
Losstaande garage met verhoogd dak
Zonnige tuin met kavelbrede vlonder gelegen aan het water en op het zuiden
Kaveloppervlakte van ruim 240 m2
Koopsom € 489.500,- v.o.n.
[vrview img="/wp-content/uploads/panorama/2478_waterrijk_int_t_Tsp_a1_pano_03.jpg" pimg="/wp-content/uploads/panorama/2478_waterrijk_int_t_Tsp_a1_pano_03.jpg" width="100%" height="550px" ]
Rondkijken in je
toekomstige woning?
Verschuif de afbeelding met je muis, of klik op de full screen modus rechtsonder in de afbeelding, en stap binnen in de lichte woonkamer.







