Woning van
Moderne tussenwoning Model M
Moderne tussenwoning met plaats voor 1 auto op de oprit. De achtertuin is gelegen aan het water.
Direct inschrijven
Kenmerken woning
Deze woning heeft zoveel moois te bieden
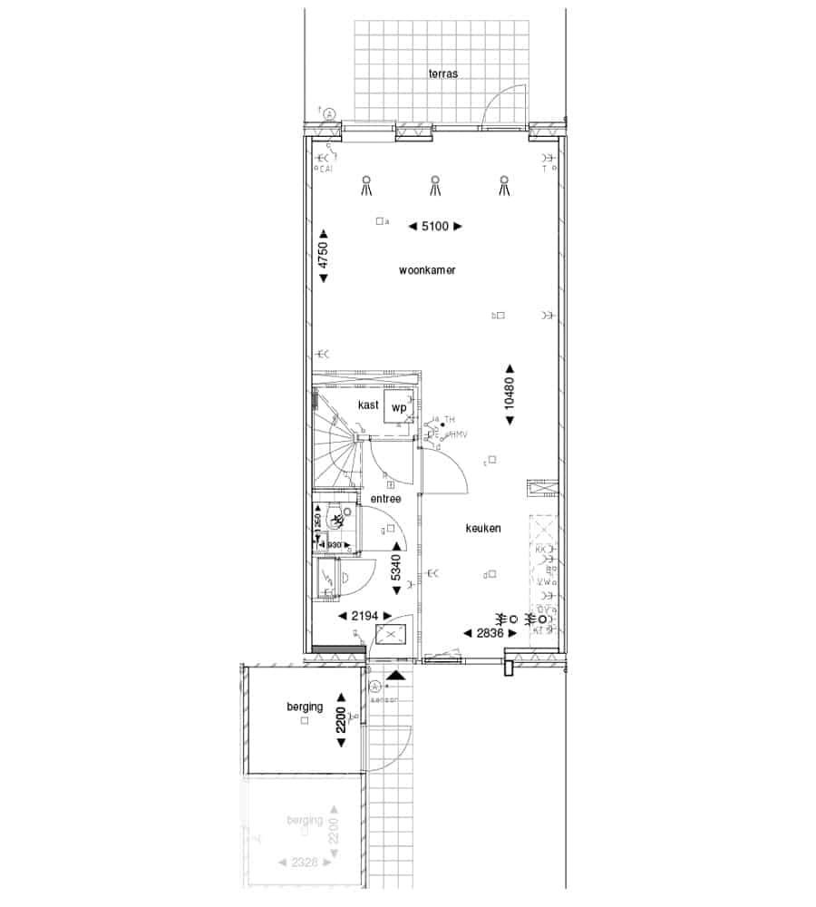
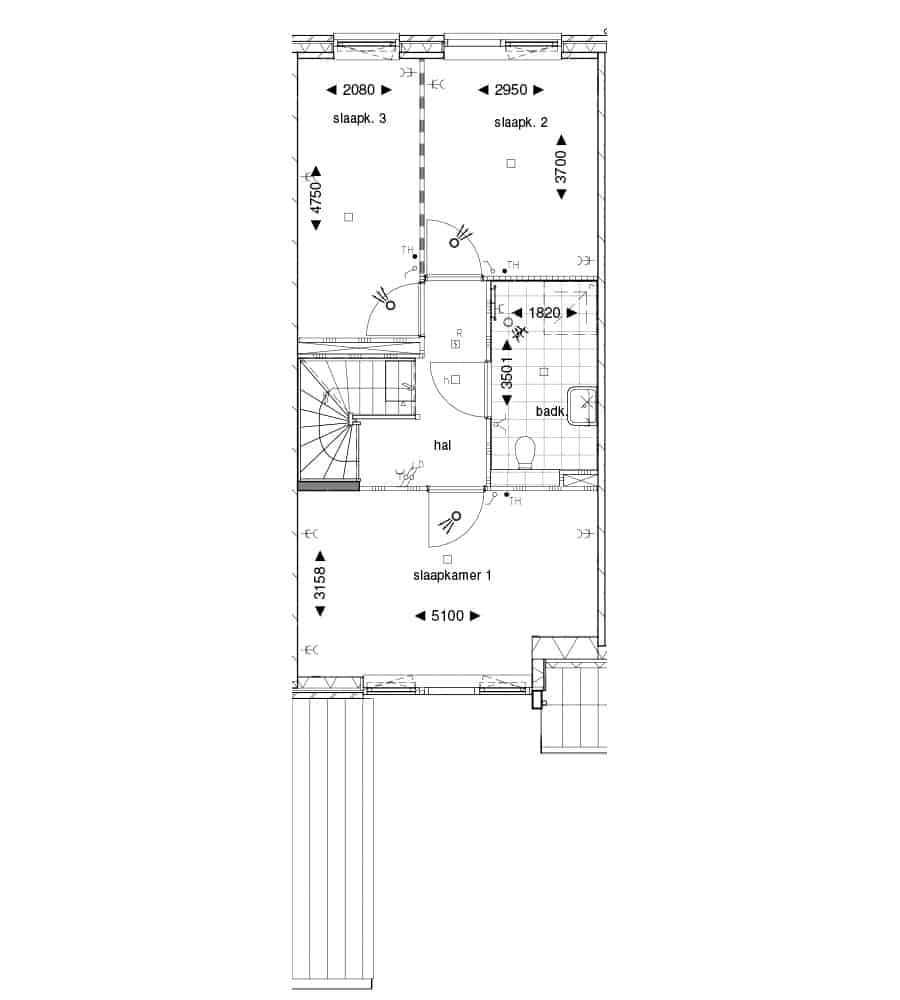
Moderne tussenwoning met standaard een gebruiksoppervlakte van 128 m2
Standaard voorzien van 3 slaapkamers
Grote onbenoemde ruimte op de zolderverdieping
Aangebouwde fietsenberging en ruimte voor parkeerplaats in de voortuin
Zonnige tuin gelegen met grote vlonder aan het water
Kaveloppervlakte van ruim 126 m2
Koopsom € 345.000,- v.o.n.
Niet alleen het huis is groot,
maar ook de ruimte eromheen
Nieuwe bewoners Mark en Daphne over Boskoop
Ze kennen elkaar inmiddels in elk geval van naam en van gezicht. Ze komen uit Boskoop of juist uit de grote stad. Ze blijken vrienden van vroeger of hebben elkaar laatst op de buurtborrel pas voor het eerst ontmoet. Het zijn de bewoners van de Brederodepeer, de eerste opgeleverde straat van Waterrijk. En ja, dat schept toch een band. Wie zijn deze eerste bewoners, hoe komen ze hier terecht en vooral: hoe is het om hier te wonen?
Lees over Mark en Daphne






