Woning van
Moderne kopwoning Model M
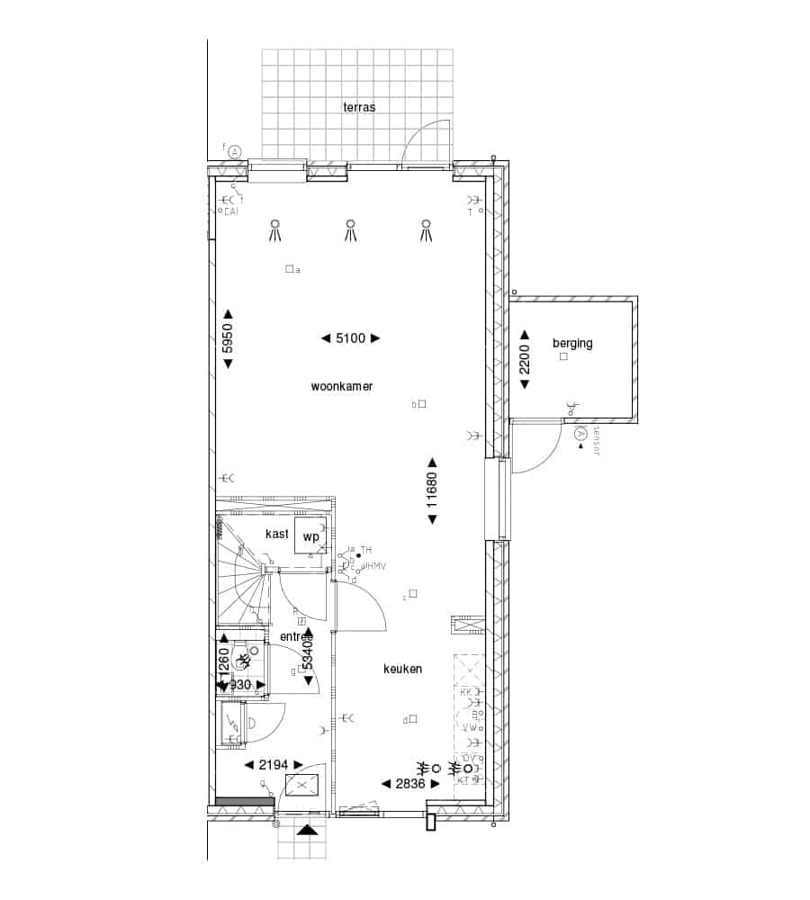
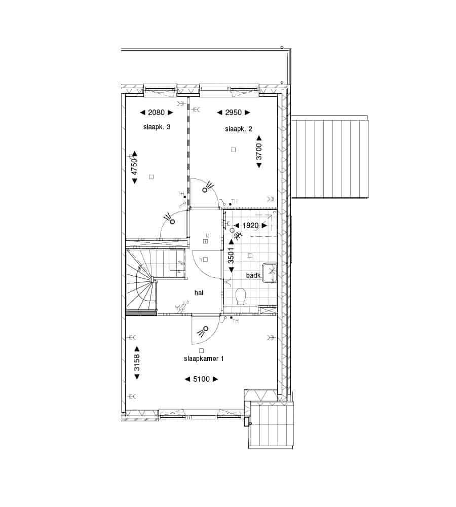
Moderne hoekwoning standaard uitgevoerd met een uitbouw waarmee de woonkamer extra wordt vergroot. De achtertuin is gelegen aan het water.
Kenmerken woning
Deze woning heeft zoveel moois te bieden
Niet alleen het huis is groot,
maar ook de ruimte eromheen
Nieuwe bewoners Mark en Daphne over Boskoop
Ze kennen elkaar inmiddels in elk geval van naam en van gezicht. Ze komen uit Boskoop of juist uit de grote stad. Ze blijken vrienden van vroeger of hebben elkaar laatst op de buurtborrel pas voor het eerst ontmoet. Het zijn de bewoners van de Brederodepeer, de eerste opgeleverde straat van Waterrijk. En ja, dat schept toch een band. Wie zijn deze eerste bewoners, hoe komen ze hier terecht en vooral: hoe is het om hier te wonen?






