Woning van
Ruime twee-onder-een kapwoning Model H
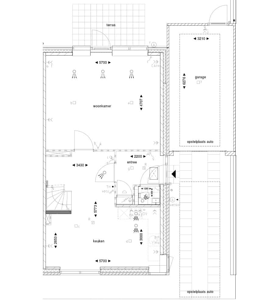
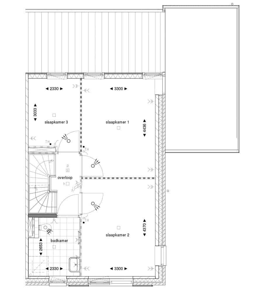
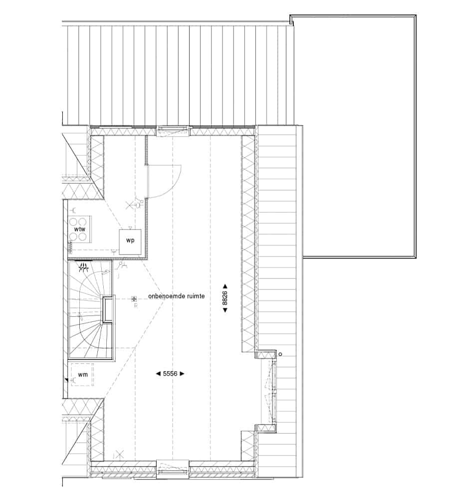
Deze twee-onder-een kapwoning met dwarskap is rustig gelegen aan het eind van de straat. De begane grond is verdeeld in een separate woonkamer en leefkeuken. Met 3 slaapkamers op de eerste verdieping en een grote onbenoemde ruimte op zolder. Standaard is de woning uitgevoerd met aangebouwde garage.
Kenmerken woning
Deze woning heeft zoveel moois te bieden
"Nieuwbouw is echt fijn:
je kunt alles precies zo kiezen als je wilt."
Nieuwe bewoners Sander en Marlies over Boskoop
Ze kennen elkaar inmiddels in elk geval van naam en van gezicht. Ze komen uit Boskoop of juist uit de grote stad. Ze blijken vrienden van vroeger of hebben elkaar laatst op de buurtborrel pas voor het eerst ontmoet. Het zijn de bewoners van de Brederodepeer, de eerste opgeleverde straat van Waterrijk. En ja, dat schept toch een band. Wie zijn deze eerste bewoners, hoe komen ze hier terecht en vooral: hoe is het om hier te wonen?
Interesse?
Plaats jezelf op de reservelijst.
Binnenkort zal bekend worden of er nog woningen beschikbaar zijn. Dus ben je geïnteresseerd in een van de woningen? Plaats jezelf dan op de reservelijst. De makelaar zal dan zo snel mogelijk contact opnemen.






